
根据不同的车厂、国家的要求,针对汽车电子产品的窄带电磁辐射干扰测试的差异性是很大的,主要集中在测试频段、干扰强度以及天线的切换频率等等。本文主要根据ISO 11452-4来介绍大电流注入法(BCI)测试的基本条件以及以下要求。
标准名称
ISO 11452-2: Road vehicles — Component test methods for electrical disturbances from narrowband radiated electromagnetic energy — Part 4: Bulk current injection (BCI)
测试目的
该测试目的是检验设备对【1MHz – 400MHz】频带的抗干扰性能。
测试条件
测试温度:(23 ± 5) °C
电源电压:(13.5 ± 0.5) V for 12 V; (27 ± 1) V for 24 V
调制:
a). 未调制正弦波信号(可使用范围:0.01 MHz to 18 GHz,校准时采用)
b). 1KHz, 80%调制的AM(振幅调制)信号(可使用范围:0.01 MHz to 800MHz,测试时采用)

滞留时间(Dwell time): 不小于1s

测试场地:
测试应该在屏蔽室里完成。
测试设备要求
大电流注入探头,该探头工作频率要能满足测试范围,能持续的经受整个测试频率范围内的输入功率。
大电流校准探头,该探头工作频率要能满足测试范围。
AN(仿真网络)
信号发生器,拥有内部(或者外部)的调制能力
功率放大器
功率计(或者等同设备),测试正向传输功率和反射功率
电流测量设备
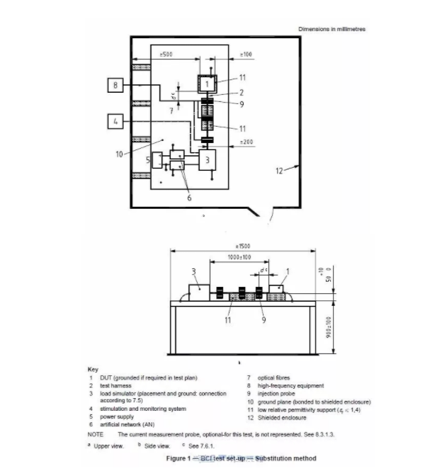
测试设置(替代法)

接地板:材料为0.5mm(最小)后的铜,黄铜或者镀锌钢材;尺寸最小为1000mm宽,1500mm长或者超出被测物200mm;接地材料的阻抗应不大于2.5豪欧,间隔应不大于300mm。
电源和AN:对于远端接地应用两个AN,对于近端接地可以只用一个AN(接于正极)。
EUT摆放:EUT应置于绝缘,低介电常数(不大于1.4)且厚度为50(±5)mm的材料上。
测试线束,EUT和模拟负载的线束总长应为1000(±100)mm,测试线束应置于绝缘,低介电常数(不大于1.4)且厚度为50(±5)mm的材料上。
大电流探头:注入探头所在位置距EUT的距离d如下(替代法):
d = (150 ± 10) mm
d = (450 ± 10) mm
d = (750 ± 10) mm
测试结果性能判据
Class A: EUT功能或性能一直保持正常,无任何异常现象。
Class B: 所有功能或性能在干扰状态下,一个或者多个功能或者性能偏移指定的容差,但所有功能或性能在干扰移除以后能恢复到规定的容差限值以内。并且存储数据不能有任何异常现象。
Class C: 一个或者多个功能或性能暂丧失,但在施加干扰之后EUT能自动恢复到正常模式。
Class D: 一个或者多个功能或性能暂丧失,但在施加干扰之后通过人为的干预能自动恢复到正常模式。
Class E: 一个或者多个功能或性能暂丧失,并且不能自动恢复到正常模式。
长沙容测电子有限公司致力于电磁兼容测试设备的研发以及电磁兼容测试技术的推广普及,全力为客户提供专业的EMC测试产品和解决方案。emc测试设备主要有:军工EMC测试设备,新能源汽车EMC测试设备,48V汽车电子可编程电源,汽车电气性能测试设备,BCI大电流注入,群脉冲发生器,雷击浪涌发生器,阻尼振荡波测试仪,静电放电发生器,电压跌落发生器等。

